Otel odası yada yatak odası gibi sessiz
olması gereken ortamlarda kullanıma uygun İç Ünite
Modeller
ARXB24LATH -
ARXB30LATH - ARXB36LATH -
ARXB45LATH
Hava girişi
İnce kompakt tasarım, 270 mm'ye kadar dar tavan
boşluklarında kolay kurulum sağlar.
Modeller
ARXA24LATH -
ARXA30LATH -
ARXA36LATH -
ARXA45LATH |
| |
|
| Model Adı |
ARXB24LALH |
ARXB30LALH |
ARXB36LALH |
ARXB45LALH |
ARXA24LALH |
ARXA30LALH |
ARXA36LALH |
ARXA45LALH |
| Güç kaynağı |
230V~50Hz |
230V~50Hz |
| Kapasite |
Soğutma |
kW |
7.1 |
9.0 |
11.2 |
12.5 |
7.1 |
9.0 |
11.2 |
12.5 |
| Isıtma |
8.0 |
10.0 |
12.5 |
14.0 |
8.0 |
10.0 |
12.5 |
14.0 |
| Giriş gücü |
W |
155 |
171 |
216 |
246 |
161 |
172 |
220 |
312 |
| Hava debisi |
Yüksek |
m3/ h |
1.090 |
1.200 |
1.440 |
1.580 |
1.100 |
1.400 |
1.750 |
1.800 |
| Orta |
970 |
1.090 |
1.270 |
1.450 |
1.00 |
1.300 |
1.650 |
1.600 |
| Düşük |
870 |
970 |
1.160 |
1.320 |
900 |
1.200 |
1.550 |
1.500 |
| Statik basınç sahası |
Pa |
0 to 80 Arası |
0 to 80 Arası |
0 to 80 Arası |
0 to 80 Arası |
30 to150 Arası |
30 to150 Arası |
30 to150 Arası |
30 to150 Arası |
| Ses seviyesi |
Yüksek |
dB(A) |
29 |
31 |
35 |
37 |
38 |
40 |
43 |
44 |
| Orta |
26 |
28 |
32 |
35 |
36 |
38 |
41 |
42 |
| Düşük |
24 |
26 |
30 |
33 |
34 |
36 |
39 |
40 |
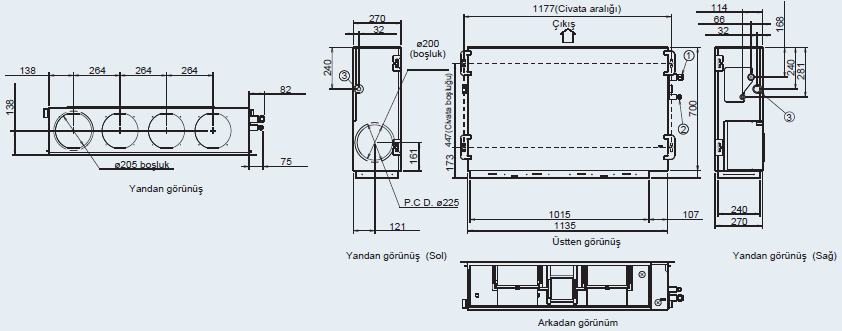
| Boyutlar (H x W x D) |
mm |
270 x 1.135 x 700 |
270 x 1.135 x 700 |
| Ağırlık |
kg |
43 |
45 |
43 |
45 |
| Bağlantı
borusu çapı |
|
Likit |
mm |
ø9.52 |
ø9.52 |
| |
Gaz |
ø15.88 |
ø19.05 |
ø15.88 |
ø19.05 |
| |
Kanal |
ø25 (I.D) ;ø32 (O.D.) |
ø25 (I.D) ;ø32 (O.D.) |
Not:Teknik özellikler aşağıdaki özelliklere dayanır.
Soğutma : 27 CDB / 19 CWB'lik iç ortam sıcaklığı ve 35 CDB / 24 CWB'lik dış ortam s caklığı.
Isıtma : 20 CDB / (15 CWB)'lik iç ortam sıcakl ğı ve 7 CDB / 6 CWB'lik dış ortam sıcaklığı.
Boru uzunluğu : 7.5 m; İç ünite ve dış ünite arasındaki yükseklik farkı : 0 m.
Voltaj : 230 [V]; Standat statik basınç: 0 Pa(ARXB24LATH,ARXB30LATH,ARXB36LATH,ARXB45LATH)
Voltaj : 230 [V] Standat statik basınç: 100 Pa(ARXA24LATH,ARXA30LATH,ARXA36LATH,ARXA45LATH)
|
| |
|
Düşük ses seviyeli ve performanslı iç üniteler geniş
statik basınç aralıklarında çalıştırılabilirler

İki yönlü Drenaj Bağlantısı
Oteler ve yatak odaları için
ideal model
İç mekanlarda gürültüyü engelleyen
ultra sessiz model, sınırlı hava kanalı
kurulum alanına sahip olan oteller ve
yatak odaları için mükemmeldir. Statik
basınç sahasına göre iki farklı model
seçilebilir. |
Kanal tipi
Esnek tasarımlı
güçlü model
Güçlü motoruyla, farklı statik
basınç sahaları için uygundur.
Ofis gibi geniş alanda, Flex
hava kanalı ile kurulumu
mümkündür.
|
 |
İki yönlü drenaj bağlantısı
 |
Kolay bakım
Arkadan emişli modelin ayrıntılarını görmek için aşağıya bakınız

Alt paneli ön ve arka olmak üzere iki parçaya ayırarak içerideki fan kaplaması
yukarı ve aşağı olarak demonte edilebilir. İki parçaya ayrılarak yapıda gelişme
kaydedilmiştir. Arka paneli ve kaplamanın aşağıdaki parçasını çıkartarak motor
fan bakımları ve demontesi kolaylıkla yapılabilir.
Kurulum çeşitleri

Opsiyonel parçalar
Alıcı Göz UTD-RS100
Uzun Ömürlü Filtre UTD-LF25NA
Boru bileziği (Kare) UTD-SF045T
Boru bileziği (Yuvarlak) UTD-RF204
IR alıcı birim UTB-YWB
Drenaj pompası UTZ-PX1NBA |