Bu iç üniteler, yüksek hava akımı miktarı ile düşük
seviyesinde kullanıma olanak sağlar.
Modeller
ARXC36LATH
ARXC45LATH
ARXC60LATH
-------------------------------------------------------------------------------------------
Modeller
ARXC72LATH
ARXC90LATH
------------------------------------------------------------------------------------------- |
| |
|
| Model Adı |
ARXC36LATH |
ARXC45LATH |
ARXC60LATH |
ARXC72LATH |
ARXC90LATH |
| Güç kaynağı |
230V~50Hz |
| Kapasite |
Soğutma |
kW |
11.2 |
12.5 |
18.0 |
22.4 |
25.0 |
| Isıtma |
12.5 |
14.0 |
20.0 |
25.0 |
28.0 |
| Giriş gücü |
W |
405 |
427 |
427 |
1.045 |
1.250 |
| Hava debisi |
Yüksek |
m3/ h |
2.600 |
3.500 |
3.500 |
3.700 |
4.300 |
| Orta |
1.950 |
3.000 |
3.000 |
3.000 |
4.000 |
| Düşük |
1.450 |
2.460 |
2.460 |
2.900 |
3.500 |
| Statik basınç sahası |
Pa |
100 to 200 Arası |
100 to 250 Arası |
100 to 250 Arası |
50 to 300 Arası |
100 to300 Arası |
| Ses seviyesi |
Yüksek |
dB(A) |
45 |
49 |
49 |
51 |
53 |
| Orta |
38 |
45 |
45 |
48 |
51 |
| Düşük |
32 |
42 |
42 |
45 |
49 |
| Boyutlar (H x W x D) |
mm |
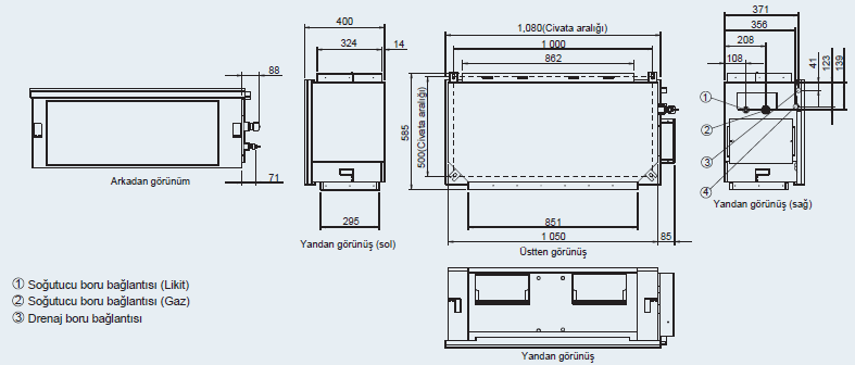
400 X 1.050 X 500 |
450 X 1.550 X 700 |
| Ağırlık |
kg |
45 |
50 |
82 |
82 |
| Bağlantı
borusu çapı |
|
Likit |
mm |
ø9.52 |
ø12.70 |
| |
Gaz |
ø19.05 |
ø22.22 |
| |
Kanal |
ø25 (I.D) ;ø32 (O.D.) |
Not:Teknik özellikler aşağıdaki özelliklere dayan r.
Soğutma : 27 CDB / 19 CWB'lik iç ortam sıcaklığı ve 35 CDB / 24 CWB'lik dış ortam sıcaklığı.
Isıtma : 20 CDB / (15 CWB)'lik iç ortam sıcaklığı ve 7 CDB / 6 CWB'lik dış ortam s cakl ğı.
Boru uzunluğu : 7.5 m; İç ünite ve dış ünite arasındaki yükseklik farkı : 0 m.
Voltaj : 230 [V]; Standat statik bas nç: 100 Pa (ARXC36LATH, ARXC45LATH, ARXC60LATH).
Voltaj : 230 [V]; Standat statik bas nç: 200 Pa (ARXC72LATH, ARXC90LATH)
|
| |
|
Modeller : ARXC36 / ARXC45
Ana gövde küçültülerek
materyallerin ağırlığı azaltılmış,
küçük ve hafif bir ürün
yaratılmıştır.

Düşük ses
Modeller : ARXC36 / ARXC45 / ARXC60
| Klasik iç ünite ön
panelinin ve fan kasası
köşelerinin oval hale
getirilmesi ile düşük
trübülans sağlanmıştır. Plastik kasa ve plastik fan ile düşük ses seviyesi sağlanmıştır. |
 |

|
Yüksek statik basın seçimi: ARXC72 / ARXC90

Opsiyonel parçalar
Uzun ömürlü filtre UTD-LF60KA (ARXC36 / 45 / 60 için)
IR alıcı birim UTB-YWB |